Home
Alle woningen
Drenthe
Flevoland
Friesland
Gelderland
Groningen
Limburg
Noord-Brabant
Noord-Holland
Overijssel
Utrecht
Zeeland
Zuid-Holland
Zoeken
Inloggen
Huis Plaatsen
s-Gravenhage
Appartement
Ypenburg, Brigantijnlaan 247
2496zs
€ 1430 p.m
301 keer bekeken
Aangeboden woning
Galerij
Gezochte woning
Contact
Aangeboden woning
Woningtype
Appartement
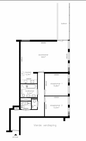
Slaapkamers
2
Kamers
3
Oppervlakte
125m2
Verdieping
4
Aanvullende informatie
Verhuuder: Staedion
Kenmerken
Badkamer
Douche
Berging
Bad
Lift
Garage
Balkon
Voorzieningen
Parkeergelegenheid
Park- of groenvoorziening
Bus/tramverbinding
Kindvriendelijk
Scholen
Winkels
Treinstation
Galerij
Gezochte woning
De aanbieder van deze woning is opzoek naar
Provincie
Utrecht
Stad
Utrecht
Stadsdeel/wijk
n.v.t.
Kamers
4
Slaapkamers
3
Woningtype
Benedenwoning
Max. huur
€ 1250
Contact
Log in of maak een account aan om te reageren
Inloggen
Aangeboden door
Hardi
Lid sinds 1 jaar
Stuur bericht
Deel deze woning met uw vrienden
Share
Tweet
Laatste 10 woningen
Nieuw!
€ 897
Appartement, 3 kamers
Zwolle, Holtenbroek
Nieuw!
€ 759
Vrijstaand geschakeld, 4 kamers
Doorn, Palmstad
Nieuw!
€ 670
Appartement, 3 kamers
Zutphen, Zutphen Noordveen
Nieuw!
€ 660
Bovenwoning, 2 kamers
Eindhoven, Doornakkers-oost
Nieuw!
€ 682
Appartement, 2 kamers
s-Hertogenbosch, Staat
Nieuw!
€ 664
Benedenwoning, 3 kamers
Nijmegen, Lent Hart van de waalsprong
Nieuw!
€ 566
Hoekwoning, 4 kamers
Borculo, berkelland
€ 792
Dubbelwoning, 4 kamers
Leiden, Roodenburgerdistrict
€ 530
Appartement, 2 kamers
Losser, Losser-West
€ 735
Tussenwoning, 4 kamers
Venray, Brukske