Aangeboden woning

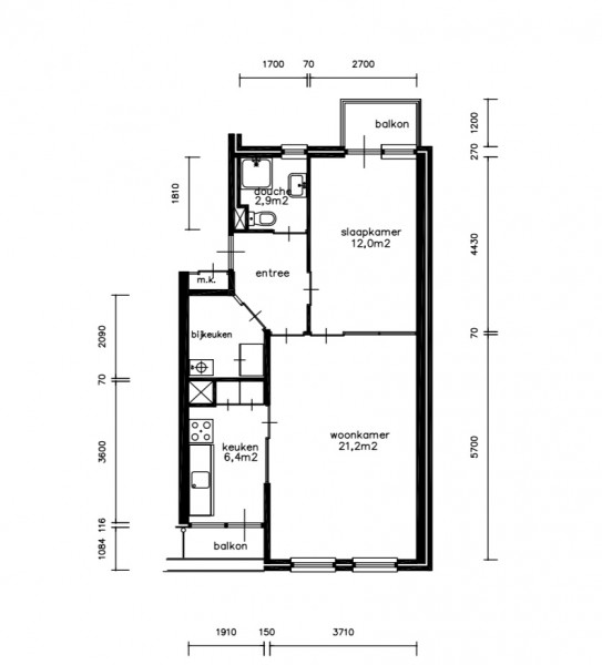
Leuke, goed geïsoleerde 2 kamer appartement in het centrum van Den Haag, met grote berging op begane grond. Woning is op 2e etage, met 1 balkon aan de voorkant bij de keuken en i balkon aan de achtzijde aan de slaapkamer. Ruim washok waar de keten ook hangt. Winkels op loop afstand, net als openbaar vervoer.

Aanvullende informatie

Verhuuder: Staedion

Kenmerken

  • Badkamer
  • Douche
  • C.V.
  • Berging
  • Balkon

Voorzieningen

  • Park- of groenvoorziening
  • Bus/tramverbinding
  • Scholen
  • Winkels
  • Treinstation

Gezochte woning

De aanbieder van deze woning is opzoek naar

Ik zoek een 3 kamer woning, waarvan 2 slaapkamers in de bovengenoemde wijken. ik sta verder open voor alle types. als je vragen hebt stuur gerust een berichtje!

Contact

Log in of maak een account aan om te reageren

Inloggen