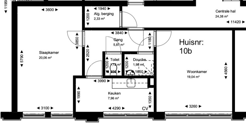
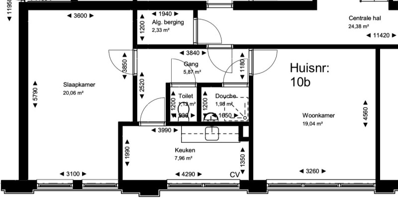
Aangeboden woning

Dit centraal gelegen appartement biedt alles wat je nodig hebt! Met een eigen berging en een privéparkeerplaats (te huur via SWZ) woon je comfortabel en praktisch. De locatie is ideaal: op slechts 3 minuten loopafstand van station Zwolle en 5 minuten van de bruisende binnenstad. Sportliefhebbers zitten hier perfect, want de sportschool ligt letterlijk om de hoek – slechts 10 seconden lopen!

Aanvullende informatie

Verhuuder: SWZ

Kenmerken

  • Badkamer
  • Douche
  • C.V.
  • Berging

Voorzieningen

  • Parkeergelegenheid
  • Park- of groenvoorziening
  • Bus/tramverbinding
  • Scholen
  • Winkels
  • Treinstation

Gezochte woning

De aanbieder van deze woning is opzoek naar

Contact

Log in of maak een account aan om te reageren

Inloggen