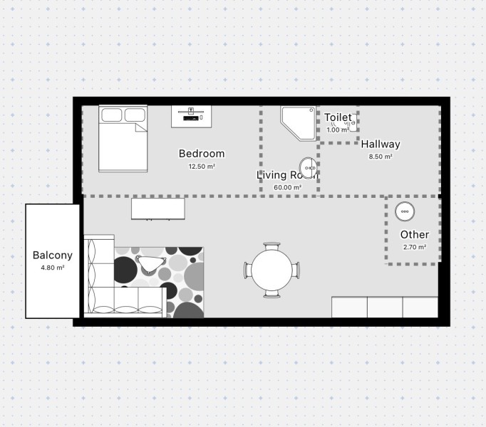
Aangeboden woning

Nieuwbouw hoek appartement in Holtenbroek met balkon. Alles elektrisch, lage maandelijkse kosten.

Aanvullende informatie

Verhuuder: SWZ

Kenmerken

  • Badkamer
  • Douche
  • Lift
  • Balkon

Voorzieningen

  • Parkeergelegenheid
  • Bus/tramverbinding
  • Scholen
  • Winkels

Gezochte woning

De aanbieder van deze woning is opzoek naar

Ik woon nu via SWZ nieuwbouw in Zwolle. Wil graag (terug) naar Kampen

Contact

Log in of maak een account aan om te reageren

Inloggen