Aangeboden woning

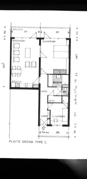
Was een 4 kamer appartement van twee slaapkamers is een grote gemaakt kan als nog twee slaapkamers van gemaakt worden dan zijn er weer drie slaapkamers Grote keuken grote woonkamer en douche klein toilet groot balkon 5 min van liddle dekamarkt vijf min van hij en park centrum 10 min Energie zuinige woning Gas en licht zit bij de huur inbegrepen Bij balkon kijk je uit op honkbalveld en bos mooie zonsondergang

Aanvullende informatie

Verhuuder: Gooi en vechtstreek

Kenmerken

  • Douche
  • C.V.
  • Berging
  • Lift
  • Balkon

Voorzieningen

  • Parkeergelegenheid
  • Park- of groenvoorziening
  • Bus/tramverbinding
  • Kindvriendelijk
  • Scholen
  • Winkels
  • Treinstation

Gezochte woning

De aanbieder van deze woning is opzoek naar

Graag 3 kamer woning met voor en achtertuin

Contact

Log in of maak een account aan om te reageren

Inloggen