Aangeboden woning

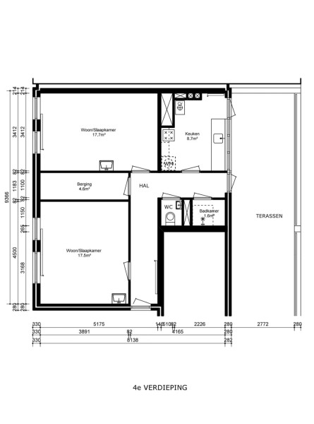
Let op: - Adres is anders genoteerd i.v.m. privacy. Het juiste adres wordt gedeeld zodra er een match is. - Ook open voor driehoeksruil. Licht en rustig 2-kamerappartement in Westerpark – ideaal gelegen naast de Jordaan. Perfect voor wie wil wonen op een centrale, maar rustige plek in Amsterdam. Op zoek naar een charmante en goed onderhouden woning in hartje Amsterdam? Deze heerlijke flat op de vierde verdieping ligt in de bruisende wijk Westerpark, op steenworp afstand van de Jordaan. Je wandelt in slechts 2 minuten het Westerpark in en binnen 10 minuten sta je op Amsterdam Centraal. Indeling & kenmerken: - 2 ruime kamers, ideaal als woonkamer en royale slaapkamer (met wastafel) - Moderne, recent gerenoveerde badkamer - Apart toilet met wastafel - Rustige ligging aan een binnentuin – geen bovenburen - Keuken met directe toegang tot een zonnig terras op het oosten - Veel lichtinval en een prettige sfeer in het hele appartement - Schuur beneden - Kleine berging in huis voor opbergruimte - GBO 63,3 m² / BVO 72,5 m² Voorzieningen & omgeving: Aan de overkant en om de hoek vind je alles wat je nodig hebt: Albert Heijn, slager, Kruidvat, Primera, Dirk, een toko en talloze eet- en drinkgelegenheden. De buurt is levendig, maar de woning zelf is een oase van rust. Bijzonderheden: - Gelegen op de 4e verdieping (zonder lift) - Geen bovenburen – extra rustig Met pijn in ons hart zijn we op zoek naar een nieuw plekje. We wonen momenteel met veel plezier in een fijne woning en een buurt die ons ontzettend dierbaar is. Toch merken we dat we toe zijn aan wat meer ruimte, vooral met onze hond en een gewenste gezinsuitbreiding. Daarom zoeken wij: - Een huis, appartement of flat met minstens dezelfde grote in de sociale sector - Liefst op de begane grond of als alternatief flat met lift - Met een tuin of een ruim terras - Mogelijkheid tot (gratis of voordelig) parkeren voor de deur of om de hoek - In een rustige, kind- en hondvriendelijke buurt - Ideaal: dichtbij natuur of groenvoorzieningen - Goede en snelle (binnen 40min) OV verbinding met Amsterdam. Preferentie plaatsen: Hilversum, Bussum, Naarden- Bussum. We staan ook open voor andere opties indien deze voldoen aan onze wensen. Voor vragen, stuur gerust een bericht.

Aanvullende informatie

Verhuuder: Rochdale

Kenmerken

  • Badkamer
  • Douche
  • C.V.
  • Berging
  • Balkon

Voorzieningen

  • Park- of groenvoorziening
  • Bus/tramverbinding
  • Scholen
  • Winkels

Gezochte woning

De aanbieder van deze woning is opzoek naar

- Een benedenwoning, (hoek)huis ,tussenwoning of appartement met minstens dezelfde grote in de sociale sector - Met een tuin of een ruim terras - Mogelijkheid tot (gratis of voordelig) parkeren voor de deur of om de hoek - In een rustige, kind- en hondvriendelijke buurt - Ideaal: dichtbij natuur of groenvoorzieningen - Goede en snelle (binnen 40min) OV verbinding met Amsterdam. Preferentie plaatsen: Hilversum, Bussum, Naarden- Bussum. We staan ook open voor andere opties indien deze voldoen aan onze wensen.

Contact

Log in of maak een account aan om te reageren

Inloggen