Aangeboden woning

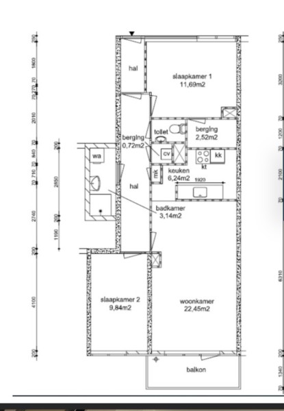
3 kamer woning op de bovenste etage, zonder inkijk. Ruime woonkamer met open keuken. 2 slaapkamers waarvan 1 met inloop kast. Badkamer en toilet apart. Op dit moment word er gerenoveerd aan de buitenzijde van het gebouw ivm nieuwe isolatie. ook komt er dit jaar nog een nieuwe badkamer in, en worden de ramen en kozijnen vervangen. Ik woon hier nu 7 jaar heerlijk aan het IJ met prachtig uitzicht op centraal station en het IJ, ookal is het hier een vrij rustige woonwijk met veel speel gelegenheden voor kinderen. Ik wil verhuizen richting Diemen om dichter bij familie te zijn.

Aanvullende informatie

Verhuuder: Eigen haard

Kenmerken

  • Badkamer
  • Douche
  • C.V.
  • Berging
  • Lift
  • Balkon

Voorzieningen

  • Parkeergelegenheid
  • Park- of groenvoorziening
  • Bus/tramverbinding
  • Kindvriendelijk
  • Scholen
  • Treinstation

Gezochte woning

De aanbieder van deze woning is opzoek naar

een woning met een tuintje en 2 slaapkamers. In Diemen centrum of Diemen noord het liefst naar Diemen zuid is ook geen probleem

Contact

Log in of maak een account aan om te reageren

Inloggen