Aangeboden woning

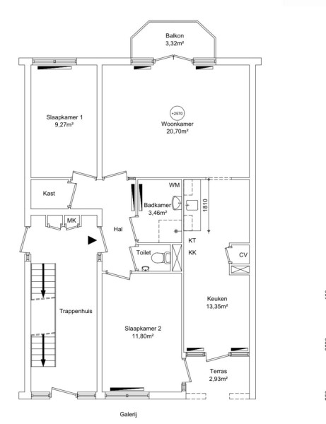
Woningruil gezocht wij ruilen ons gezellige huis in de Barentszstraat, Amsterdam! Wij zijn een gezin van vijf (twee ouders en drie kinderen) en wonen momenteel met veel plezier in de Barentszstraat in Amsterdam, midden in de levendige Zeeheldenbuurt, de jordaan, vlak bij het centrum, Westerpark en de Spaarndammerstraat. Onze woning is super knus en licht, maar helaas te klein geworden voor ons groeiende gezin. Daarom zijn wij op zoek naar een grotere woning bij voorkeur: Begane grond, flat of appartement, Minimaal 3 slaapkamers In Amsterdam of omgeving (Zaanstad, Haarlem, Amstelveen, Diemen, etc.) Liefst met wat buitenruimte balkon, tuin of speeltuintje in de buurt Over onze woning aan de Barentszstraat 29 Woonoppervlakte: ca. 69 m² 2 slaapkamers, ruime lichte woonkamers Keurige keuken met een apparte zithoek en nette badkamer Goed onderhouden en netjes bewoond Gelegen in een gezellige straat. Dicht bij winkels, scholen, speeltuintjes, jordaan, centrum, centraal station, Westerpark en openbaar vervoer Centrale locatie: binnen 5 minuten op de fiets bij Amsterdam Centraal! met het pondje direct in noord.

Aanvullende informatie

Verhuuder: eigenhaard

Kenmerken

  • Douche
  • C.V.
  • Berging
  • Lift
  • Balkon

Voorzieningen

  • Parkeergelegenheid
  • Park- of groenvoorziening
  • Bus/tramverbinding
  • Kindvriendelijk
  • Scholen
  • Winkels
  • Treinstation

Gezochte woning

De aanbieder van deze woning is opzoek naar

wij zijn een gezin van 5 personen (2 volwassenen en 3 kinderen) en zijn dringend op zoek naar een ruimere woning. Onze huidige woning is te klein geworden, dus we hopen een plek te vinden waar onze kinderen wat meer ruimte hebben om te spelen en op te groeien. Wat wij zoeken In Amsterdam of omgeving (Amstelveen, Diemen, Zaandam, Haarlem, Landsmeer e.o.) Begane grond met tuin óf een groter appartement/flatwoning Minimaal 3 slaapkamers (meer is welkom) Graag in een kindvriendelijke buurt, met scholen, speeltuin en winkels in de buurt Een rustige, veilige omgeving waar gezinnen fijn kunnen wonen Wij staan open voor woningruil of andere vormen van woningaanbod. Heb jij of weet jij een geschikte woning? Laat het ons weten email : misz21@hotmail.com /tel 0648853741 we zoeken met spoed een ruime gezinswoning waar we met z’n vijven comfortabel kunnen wonen.

Contact

Log in of maak een account aan om te reageren

Inloggen