Aangeboden woning

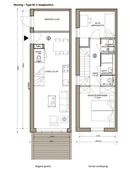
Opgeleverd eind 2022, ik woon er sinds begin 2023. Rustige buurt in Woensel-Noord met kinderen, veel groen, sociale buren, OV in de buurt en winkels zoals een JUMBO en Albert Heijn. Het centrum en station is op 30 minuten fietsen afstand. De woning is simpel en klein. Prima voor een alleenstaande (ouder), stelletje of klein gezin. Het huis heeft zonnepanelen en een energielabel A+ (of misschien zelfs ++). Alles dan dus ook elektrisch. De hele dag schijnt er zon op het huis wat met de warme maanden zorgt voor een lekkere teruglevering zonne energie! Ik heb vorig jaar en dit jaar hierdoor 5 maanden niks hoeven te betalen. Ik wil van woning ruilen omdat ik mijn oude wijk (Woensel-Zuid) enorm mis. Ook maakt minder centraal wonen bepaalde dingen met werk soms lastig. Sinds mijn ongeluk eerder dit jaar (2024) is het zwaar om in mijn huis te zijn. Het is niet zo toegankelijk meer voor mij. Daarom zoek ik iets wat meer centraal en/of in Woensel-Zuid gelegen is. Een gelijkvloers woning, begane grond in een appartement complex of hogere verdieping maar wel een lift is belangrijk voor mij. Ik ben een A-energielabel huis gewend, dus dat is ook wat ik zoek. Een tuin/groen is een must, zodat mijn 2 katten ook wat te ervaren hebben buiten. Dit huis is een sociale huurwoning, en dus zoek ik ook een sociale huurwoning om mee te ruilen.

Aanvullende informatie

Verhuuder: Woonbedrijf

Kenmerken

  • Douche
  • Voortuin

Voorzieningen

  • Parkeergelegenheid
  • Park- of groenvoorziening
  • Bus/tramverbinding
  • Kindvriendelijk
  • Scholen
  • Winkels

Gezochte woning

De aanbieder van deze woning is opzoek naar

Contact

Log in of maak een account aan om te reageren

Inloggen