Aangeboden woning

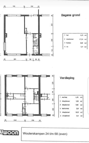
Ruime woning met 3 slaapkamers en vaste trap naar grote zolder voor evt 4 slaapkamer. Begane grond heeft een ruime woonkamer, keuken, toilet, kelder en een grote tuin. Op de 1ste verdieping bevind zich de badkamer met toilet en extra hok voor wasmachine en droger (was vroeger de badkamer) 2 grote slaapkamers en kleinere kamer. (Ik heb wel 80m2 opgegeven maar geen idee of het klopt. Kan ook meer zijn). Ik zoek een leuke woning met tuin in Harderwijk met minimaal 2 slaapkamers. Geen appartementen, geen bovenburen.

Aanvullende informatie

Verhuuder: Uwoon

Kenmerken

  • Badkamer
  • Douche
  • C.V.
  • Voortuin
  • Zolder
  • Berging
  • Achtertuin

Voorzieningen

Gezochte woning

De aanbieder van deze woning is opzoek naar

Contact

Log in of maak een account aan om te reageren

Inloggen