Aangeboden woning

Waarom wilt u hier wonen? Op loopafstand van het centrum Multiculturele wijk Supermarkt ligt in de wijk Treinstation 500m verderop Op loopafstand van het Musispark Goed om te weten Woning is vóór 1950 gebouwd en kan gehorig zijn

Aanvullende informatie

Verhuuder: Mooiland

Kenmerken

  • Douche
  • C.V.
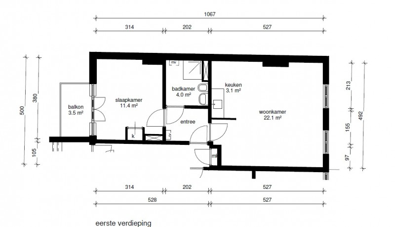
  • Balkon

Voorzieningen

  • Bus/tramverbinding
  • Treinstation

Gezochte woning

De aanbieder van deze woning is opzoek naar

Contact

Log in of maak een account aan om te reageren

Inloggen